Санкт-Петербург
8 (812) 999-59-45
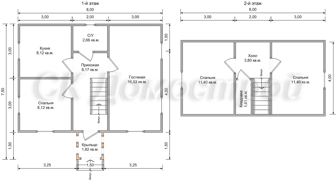
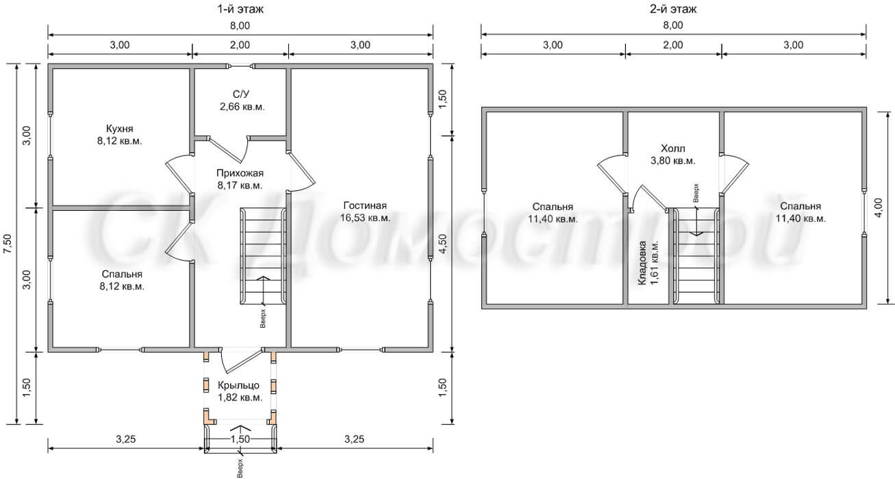
Габариты

6х8 м

76 м²

2 этажа

3 спальни

Виды комплектаций
Наружный контур
1,64 млн ₽
icon
Теплый контур
2,25 млн ₽
С отделкой
по запросу

Хотите внести изменения?

Если понравился проект и нужно видоизменить его, мы постараемся сделать все возможное, чтобы Ваши желания стали реальностью.

Обсудить индивидуальный проект

Различие
комплектаций

Наименование
Наружный контур
Теплый контур
С отделкой
1,64 млн ₽
2,25 млн ₽
по запросу
Наружная отделка
Утепление
Внутренняя отделка
Фундамент
Фундамент
Фундамент
Рассчитывается и изготавливается индивидуально
Высоты этажей
Высоты этажей
Первый этаж
2,7 м
2,7 м
2,7 м
Второй этаж
2,5 м
2,5 м
2,5 м
Силовые конструкции
Силовые конструкции
Основание: строганная строенная доска 45х140 мм
Черновой пол: сухая доска 40х200 мм
Балки перекрытия: сухая доска 40х200 мм
Силовой каркас наружных стен: сухая доска 40х150 мм
Внутренние перегородки: сухая доска 40х100 мм
Стропила: сухая доска 40х200 мм
Кровля
Кровля
Кровельное покрытие: металлочерепица профиль СуперМонтерей
Подкровельная пароизоляция: мембранная пленка Изоспан АМ
Подкровельный вент зазор: сухой брусок 40х50 мм
Подкровельная обрешетка: сухая доска 25х100 мм
Внешняя отделка
Внешняя отделка
Ветрозащита: мембранная пленка
Вентилируемый фасад: рейка 20х40 мм
Отделка: имитация бруса 20х140 мм камерной сушки (горизонтально)
Подшивка свесов строганая доска 20х90 мм
Внутренняя отделка
Внутренняя отделка
Вентиляционный зазор: рейка 20х40 мм
Чистовой пол: плиты QUICK DECK 16 мм
Стены и перегородки: евровагонка
Потолки: евровагонка
Утепление и пароизоляция
Утепление и пароизоляция
Перекрытия: плитный утеплитель 200 мм
Наружный контур: плитный утеплитель 150 мм
Перегородки: плитный утеплитель 100 мм
Пароизоляция: пленка 200 мкм
Двери
Двери
Входная дверь: металлическая, производство Россия
Межкомнатные двери
Окна
Окна
Окна: двухкамерные ПВХ “REHAU”, размеры согласно проекту
Лестница
Лестница
Лестница
Терраса (при наличии)
Терраса (при наличии)
Пол: строганая доска 40х100 мм
Потолок: строганая доска 20х100 мм
Столбы: строганая доска 40х150 мм
Поручни: строганая доска 40х150 мм
Балясины: строганая доска 40х100 мм
Доставка и сборка
Доставка и сборка
Сборка
Сборка домокомплекта на участке заказчика
Доставка
50 км от МКАД, КАД бесплатно
Гарантия
5 лет
Ознакомиться полностью

О доме

Планировка дома
Получить консультацию и расчет
Главная
Контакты
Проекты
Меню
Наверх